Casa LM

Guadalajara, Mx.

Ubicada en la cima de una montaña en Guadalajara, Casa LM nace del encargo de una pareja joven, que buscaba tener un oasis dentro de la ciudad.

Una grapa de concreto — el cual alberga el programa social — se posa firmemente en la parte alta de una loma del terreno, sugiriendo al visitante a ingresar por debajo de ella. La grapa recibe sobre ella una caja de madera, aparentemente introvertida con el exterior por su solidez, pero con la cualidad de contar con postigos abatibles que generan vanos en el volumen, filtran la luz del sol y permiten al usuario asomarse hacia el exterior para dialogar con su entorno. El movimiento de estos postigos nos ayudan a lograr una casa siempre cambiante en la manera de vivirla y también en la manera de percibirla desde el exterior, así como proteger al interior de la luz solar.

_MG_9030.jpg
_MG_8833.jpg
 
_MG_9058.jpg
 
 
_MG_8733.jpg
 
CasaLm_pb-01.jpg
 

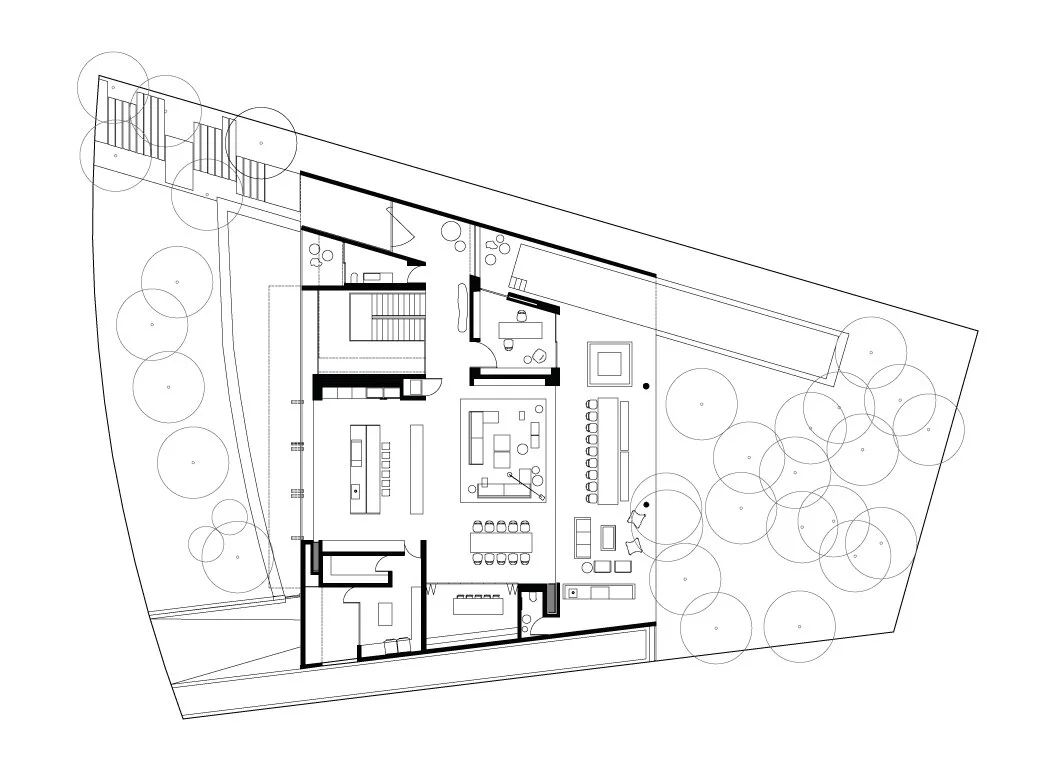
Al contrario de la planta alta, el basamento de concreto que abraza al programa público en planta baja, hace énfasis siempre en el exterior, especialmente en la parte posterior del terreno, vecina de un campo de golf, que se adentra a la casa por medio del jardín. Esta relación es notoria desde el ingreso de la casa, el cual remata con una larga alberca que nace del interior de la casa y sale al jardín queriendo alcanzar el paisaje inmediato, incitando al usuario a contemplar en todo momento aquella vista del “jardín eterno”. Por el otro lado, el volumen de madera que alberga al programa privado, es más sereno en su interior, busca ser un espacio de introspección donde el habitante pueda encontrarse en la soledad.


 
_MG_8992.jpg
 
 


_MG_8840.jpg

Año Terminado : 2020

Fotografía: Lorena Darquea

 

Diseño:

Elias Rizo

Alejandro Rizo

Coordinación:

Diana Resendiz

 
Next
Next

FRATER